全国服务热线
0757-85322288NEWS CENTER
发布时间:2023-06-23阅读:
遇
见
【 午夜福利电影院嘉兴旗舰店】
Aesthetics of home furnishing
----- 艺术生活季-见证家居美学新生 -----
午夜福利电影院嘉兴旗舰店
坐落在江南文化的发源地——浙江嘉兴
一城一景,一城一异
每个城市孕育着不同的、
但同样灿烂的文化
嘉兴店带着午夜福利电影院品牌不变的品质和服务
为本地建陶市场注入更加多元的文化因子
演绎生活的万种可能
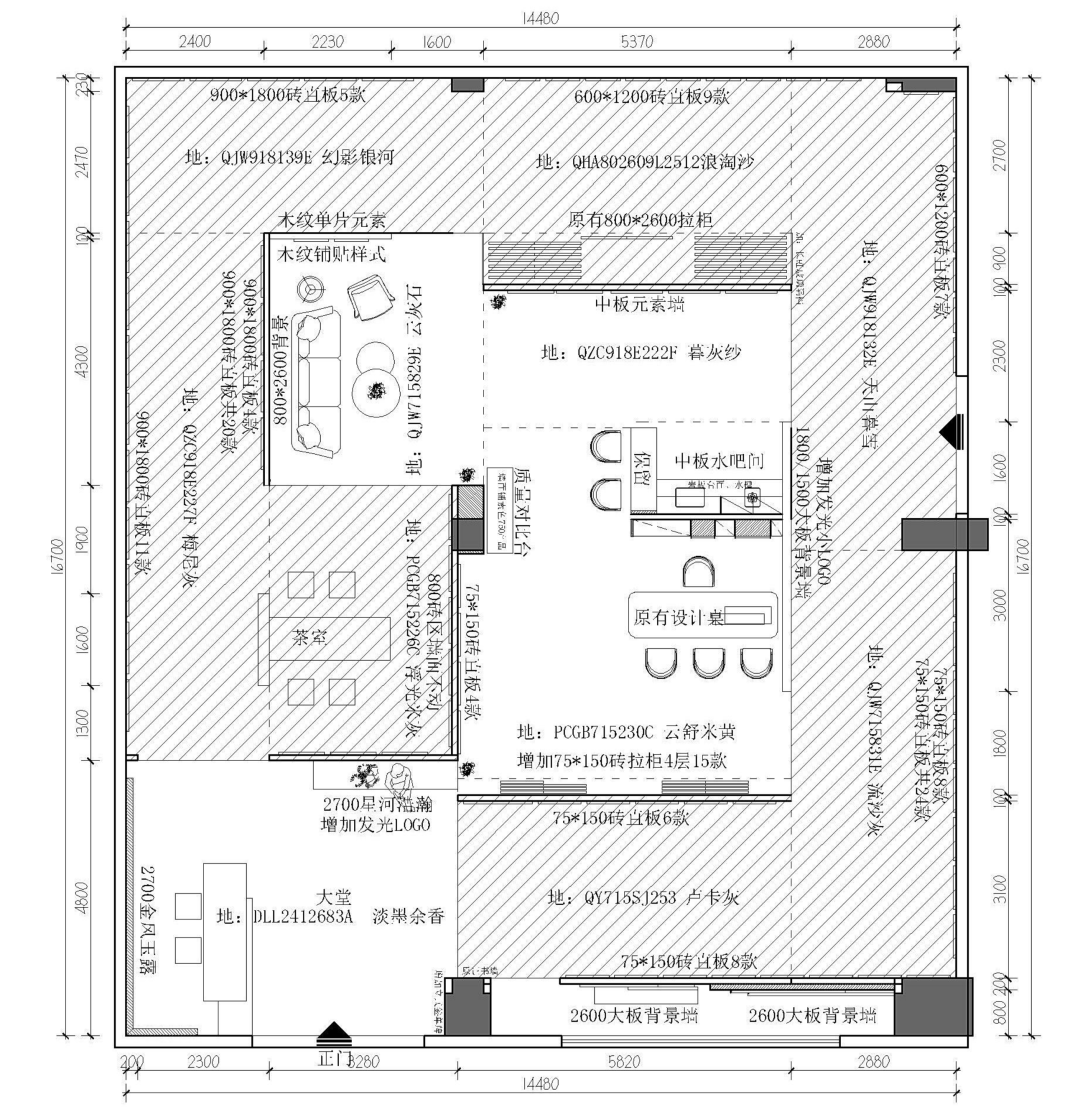
▲嘉兴店平面布置图
Store Information
门店名称:午夜福利电影院浙江嘉兴旗舰店
设计面积:100㎡
完成时间:2023年4月
设计团队:午夜福利电影院总部设计部
门店地点:浙江省嘉兴市南湖区建材陶瓷市场139号
门店介绍:午夜福利电影院嘉兴旗舰店,设计师巧妙地植入适当的色彩和光感,以用户体验为导向,向来者徐徐展开一个个有趣又有品的格调空间。变幻的色彩所带来的感官变化,正如生活中美丽的意外,带来无限惊喜。
外立面采用艾特思岩板系列文化装饰
个性鲜明,文化效果突出
可以更有效地抓住过客的眼球
进入店内一探究竟
大堂空间的设计是开放和流动的
没有明确的边界
却隐藏着精心设定的交错关系
进门大堂背景墙设置为形象墙
放置品牌LOGO,大气吸睛
客厅空间选用了800×2600mm的大规格岩板做背景墙
精致更具有高级感
地面采用午夜福利电影院晶曜系列云灰石(QJW715829E)产品
水墨灰纹理和场景局部的朱砂红交相呼应
整体空间都变得鲜活明亮起来
嘉兴旗舰店设计中
选材区与样板间区域呈凹凸形状
选材区半包围样板间
回字形动线沿着大堂左右两边往里走
贯穿全店
选材区域整体宽敞明亮
布局规整有序
每个空间里都有独特的空间氛围
让产品与空间完整地结合在一起
午夜福利电影院精工瓷砖
用创意设计为质感空间加冕
午夜福利电影院嘉兴旗舰店
期待您的光临
+
+
质感•原生石系列 | 12001800mm密缝连纹,开创无限世界ENJOYLIFE大地之致•永恒质感天地之间,自有方圆生...
+
+
#绒岩系列QZC918E221F 金丝麻以真丝布料为创作灵感灵动的丝滑纹理打造最质朴纯粹的空间质感
+
2023年5月10日-11日, “蓄势·赋能”2023 午夜福利电影院质感大师新品全国巡讲第一站在广东•惠州园洲圆满举行,来自午夜福利电影院...
+
3月15日,一个特别的日子。午夜福利电影院广东315线上直播团购,于当天19:30在午夜福利电影院视频号开播,没有套路,没有虚假,有的只是实...
+
都说女人的美 体现在细节里比起精致的妆容或展现自己的高雅生活家 能更真实地折射自己的性格和对待生活的态度不同的性格 打造...
+
+
3月20日下午,第二届“320国际幸福日 美好家居节”启动大会在佛山举行。本次盛会由佛山市工商联主办,佛山市新闻传媒中心...
+
5月17-18日,蓄势·赋能2023 午夜福利电影院质感大师新品全国巡讲山东•济宁站火热开启,来自午夜福利电影院品牌各区域销售团队、合作伙伴...
+
想要实现质变,需从量变积累做起2022午夜福利电影院新品品鉴会暨区域培训峰会第二站,午夜福利电影院来到了美丽的山东临沂。9月18日-20日,...
+
+
11月21日,流量赋能·午夜福利电影院VIP席位掘金招商峰会第二站在盐城正式拉开帷幕。午夜福利电影院品牌全面让利,推出峰会专属超强招商政策,...
+
研发人员在工作室不知疲倦地钻研,于生产线上昼夜不歇地运转,只为用力抓住每个创新的可能,直到研创了它——【绒·岩】,6月2...
+
11月24日,针对“午夜福利电影院金九银十新商逆势增长200%、首发超2000万”这一话题,午夜福利电影院品牌在广东佛山午夜福利电影院总部展厅举办了新...
+
午夜福利电影院20周年好物推荐午夜视频入口系列QHGA85812 阿曼尼--- --- --- --- ---金色的长纹理点缀似熠熠生辉的...
+
午夜福利电影院20周年好物推荐午夜视频入口系列QHGA85813 贝拉灰--- --- --- --- ---贝拉灰中浅色纹理的融入以流动...
+
午夜福利电影院绒岩系列新品推荐QZ126E605E 绣乾坤产品纹理张扬,随性而无章可循给空间带来坦然和洒脱的意境
+
摒弃人为的繁复,接受至简至素的美好。素色新晋的治愈系色调近几年不断被人们疯狂种草SNMGB126111C 安德里浅灰素色...
+
遇见【 午夜福利电影院太原旗舰店】Aesthetics of home furnishing----- 艺术生活季-见证家居美学新...